Oak Park Terrace

Custom Homes

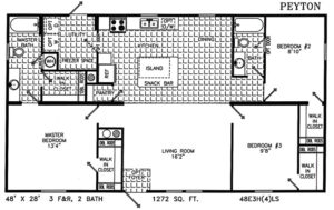
peyton

Bookmark the permalink.

© 2021 Lakeshore Communities. All rights reserved.